N00067 | Prodáme RD v Kestřanech u Písku A

38601, Štěkeň
4 490 000 Kč (za nemovitost)

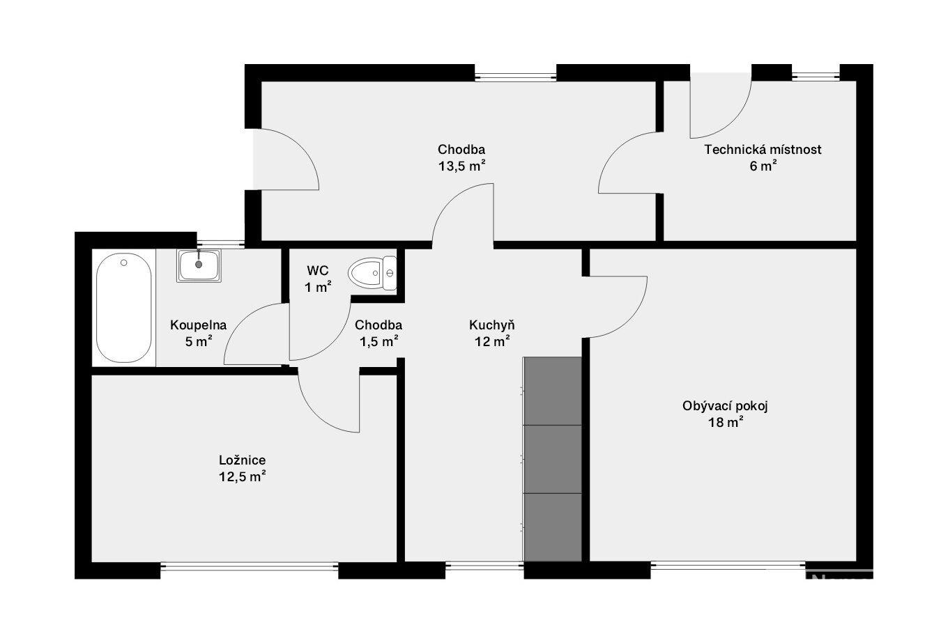
Prodáme RD v Kestřanech u Písku. Zastavěná plocha a nádvoří měří 497 m2. Dům o dispozici 2+1 prošel postupnou rozsáhlou rekonstrukcí. V r. 2006 byla vyměněna okna z dvojskly, instalovány komplet nové rozvody vody i elektřiny, ústřední topení a podlahy. V r. 2010 byly namontovány solární panely, v r. 2014 tepelné čerpadlo, v r. 2020 fotovoltaika a v r. 2023 bylo provedeno zateplení fasády, montáž okenních rolet a dokončeno nové oplocení s instalací elektrických vjezdových vrat. Voda je čerpána z vlastní studny, přičemž obecní vodovod je přiveden k hranici pozemku. Lokální topení a ohřev vody zajišťuje solární kolektor v kombinaci s elektřinou. V koupelně je umístěna vana, WC je samostatné. V celém domě je na podlahách dlažba, střecha je sedlová s pálenými taškami. Nemovitost je v klasifikační třídě energetické náročnosti A. Odpady ústí do septiku a trativodem pod silnicí jsou odvedeny do vsaku na vlastním pozemku. Příjezd je obecní zpevněný. K domu náleží technická místnost, velká stodola a dvůr se zahrádkou a skleníkem. Bonusem jsou dvě velké zahrady. První za domem o výměře 1229 m2 a druhá přes silnici o ploše 1680 m2. V obci se nachází kulturní dům a nové víceúčelové hřiště. Veškerá občanská vybavenost je v 2,5 km vzdálené Štěkni. Nejbližší okresní města Strakonice a Písek jsou v dojezdové vzdálenosti 11,5 km.

  • Poloha objektu:řadový
  • Druh objektu:smíšená
  • Stav objektu:velmi dobrý
  • Počet podlaží v objektu:1
  • Typ domu:přízemní
  • Zastavěná plocha:497 m2
  • Užitná plocha:69 m2
  • Plocha parcely:3400 m2
  • Umístění objektu:okraj obce
  • Doprava:silnice; autobus
  • Elektřina:Elektro - 230 V
  • Voda:Místní zdroj vody
  • Topení:Ústřední - elektrické; Jiné
  • Energetická náročnost budovy:A - Mimořádně úsporná
  • Energetický ukazatel
    podle vyhlášky:
    č. 264/2020 Sb.
  • Předzahrádka:3400 m2


Prodávající makléř

Jaroslav Staněk

Kontaktní formulář